CP Property are delighted to offer this traditional Victorian stone built south-facing first floor flat occupying prime position within the desirable district of Hillside, a short walk from Edinburgh’s city centre.
Let quickly, let safely, let digitally.
The lettings process is changing to keep our tenants and agents safe. Find out more
In order to minimise physical contact, the Scottish government have introduced precautionary measures to make the viewing process safer for all parties. Please read on fora brief guide about how to navigate the current rental market. Keep in mind that whilst viewing and moving properties, the safety of you and those around you should remain imperative.
Step 1. Prescreening
Letting agents are encouraged to pre-screen tenants before they are offered a physical viewing. By using our MyRentalCV referencing tool to store all of your rental information, agents will be safe in the knowledge that you are a suitable tenant.
Step 2. Watching a Virtual Viewing
Virtual viewings will give you a better feel for the property and determine where you’d like to apply for a physical viewing, from the safety and comfort of your own home.
Step 3. Attending a Controlled Viewing
Once you are invited to an in-person viewing, safety will be priority. You will be advised to wear a face covering, not touch surfaces where possible and adhere to the 2m distancing.
If you have any of the following symptoms, or have been in contact with anyone showing these symptoms in the past 14 days, you will unfortunately be unable to attend a physical viewing:
A high temperature
A new, continuous cough
A loss or change to your sense of smell or taste
Face Coverings
If you are attending a physical viewing, your safety is vital. We advise that all parties arrive with a face covering, and wear it at all times during the viewing. You are then responsible to safely dispose or keep your own face covering. This cannot be done inside the property you are viewing.
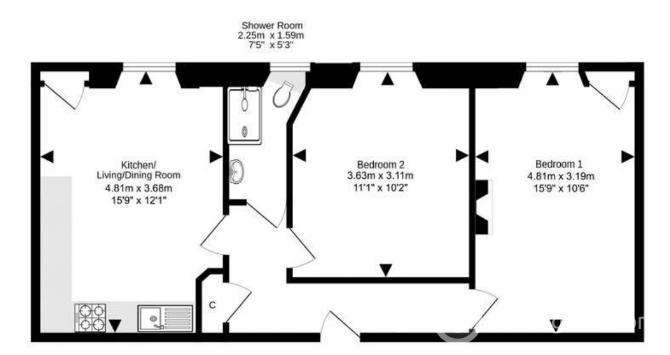
Property Description
CP Property are delighted to offer this traditional Victorian stone built south-facing first floor flat occupying prime position within the desirable district of Hillside, a short walk from Edinburgh’s city centre.
This delightful property has been tastefully styled whilst retaining a wealth of period features including large rooms, feature fireplace and ornate cornicing. The property comprises hallway with storage and a pulley, an open plan kitchen/living that includes oven, electric hob and fan, fridge with freezer, washing machine and built in wine rack. There are two double bedrooms one benefitting from a traditional fireplace and cornicing. The property also benefits from gas central heating, a shared garden and permit parking.
Early viewing is highly advised to avoid missing this very attractive property located in a very sought after area. Available 2nd June 2025.